U$S 70.000
Descripción
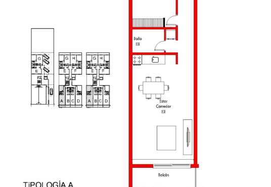
DEPARTAMENTO 2 AMBIENTES GRANDE EN VENTA
- 📍Ubicación: Avenida Virgen de Lujan e/ 32 y 34
EDIFICIO A ESTRENAR DE CATEGORIA.
Unidades disponibles en planta baja y 1er piso con ascensor.
✔️ Comodidades:
+ Cocina comedor amplio, con ventana balcon. Con bajo mesada y alacena en melamina.
+ Un dormitorio con placar empotrado.
+ Baño completo con pie de ducha y ventilacion natura.
+ Balcon saliente.
El edificio cuenta con detalles de categoria como: ascensor de ultima categoria, piso porcelanato, aberturas de aluminio DVH, griferia ferrum.
OPCIONAL DE COCHERA DESCUBIERTA.
✔️ Servicios: Todos.
✔️ Superficie: 56m2 aproximados
➡️ Valor al contado: U$S70.000
➡️ Posibilidad de financiación;
Si te interesa esta propiedad visitanos en nuestra oficina, calle 21 Nro 778.
📱 Contactos:
Mariano (2266) – 677000
Micaela (2266) – 672770











