U$S 160.000
Descripción
CASA EN VENTA
📍Ubicación: Calle 51 e/ 40 y 42.
➡️ APTA CREDITO HIPOTECARIO.
✔️ Comodidades:
+ Sobre lote de 1290m2 o lote de 2580m2
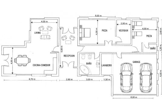
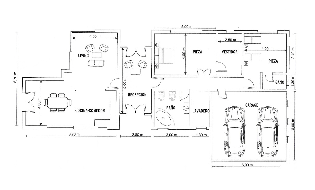
+ Hall de ingreso.
+ Living-cocina-comedor
+ 2 dormitorios (uno con vestidor y otro con baño)
+ Baño completo con hidromasaje.
+ Gran parque.
+ Garaje para 2 vehiculo.
➡️ Valor con lote de 43 x 30: U$S160.000
➡️ Valor con lote de 43 x 60 : U$S200.000
Toman propiedades de menor valor.
Si te interesa esta propiedad visitanos en nuestra oficina, calle 21 Nro 778.
📱 Contactos:
Mariano (2266) – 677000
Micaela (2266) – 672770





















